제품소개
고객과 함께 성장하는 비즈니스 파트너
비파워는 항상 여러분과 함께 합니다.

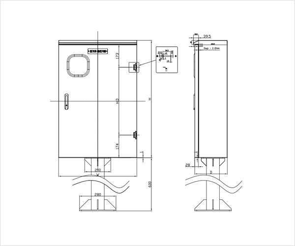
(단위 : mm)
| Item No. | W | H | D | H,D |
|---|---|---|---|---|
| 5 Gcon 1C | 500 | 700 | 250 | 320 |
| 6 Gcon 2~3C | 600 | 800 | 250 | 420 |
| 7 Gcon 4~6C | 600 | 900 | 250 | 520 |
| 8 Gcon 11~12C | 700 | 1000 | 250 | 620 |
| 9 Gcon 13~15C | 700 | 1150 | 200 | 770 |
* 상기 사이즈와 스페셜 사이즈 제작 가능합니다.

Pole
-

Stand
-